トータルでお願いしたい|薬局の開業・開局の専門コンサルタント「三和メディコ」

薬局開業専門コンサルティング
お問い合わせフォーム

トータルでお願いしたい

CASE2 コンサルティングから設計・施工までのトータルサポート

三和メディコが薬局開業をお手伝いした事例のなかから、市場調査や物件探し、事業計画立案など、コンサルティング業務からトータルで開業をサポートした事例をご紹介します。

お客様のご要望

  • 一つの建物に複数科目の医院と薬局を入れる
  • 医院も含め、コンサルティングから設計、施工までお願いしたい

当社のご提案、対応

  • 各医院、薬局(施主様)と打ち合わせ、コンサルティング
  • 要望をくみ取りつつ、最適な設計

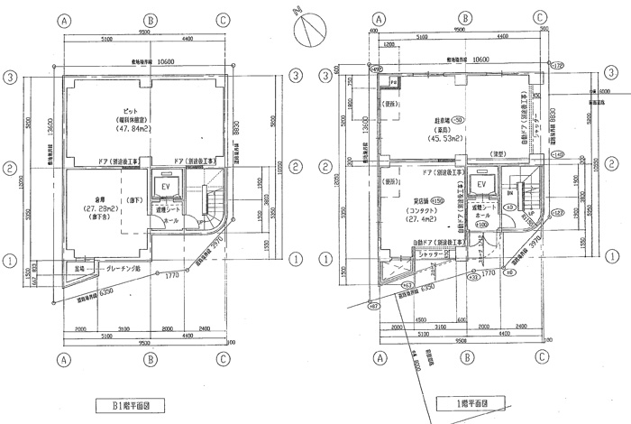
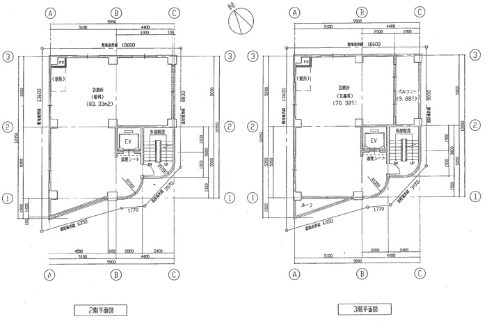
この事例は1つの建物に眼科、耳鼻科、薬局を併設する、ちょっと特殊なものでした。当社は調剤薬局のコンサルティングはもちろん、医院のコンサルティングも手掛けており、今回は同時進行で進めました。
資金、事業計画はもちろん、各施主様のご意向をくみ取りながらの設計、コンサルティングを行いました。


設計のポイント

各施主様のご意見をくみ取りつつ、階数を決定しました。
病院と同一建物内にある場合、病院から薬局へ行く際には一度公道に出なければならない、という規制があるため、それに沿った設計を行ったのがポイントです。
また、3階建てのため、無理なく3階までいけるよう、エレベーターも設置しました。

薬局開業、独立コンサルティング ~三和メディコ~



ページの上部へ戻る